How To Do A 3 Way Switch

How to do a 3 way switch
The black wire connects to a taped white wire that passes through the first switch box and connects to the common terminal on the second switch. Red and black travelers then connect the paired traveler terminals on both switches. Three-way switch wiring where power goes directly to the light.
Does it matter how you wire a 3-way switch?
It doesn't matter which traveler wire (red or black) connects to which traveler terminal as long as it's the same in both switch boxes. For example, if the red traveler wire is on the top traveler terminal in the first box, it should also be on the top traveler terminal in the second box.
How are 3-way switches supposed to work?
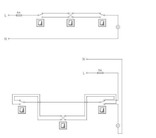
"3-way" is the electrician's designation for a single pole double throw (SPDT) switch. The switches must create a complete circuit for current to flow and the bulb to light. When both switches are up, the circuit is complete (top right). When both switches are down, the circuit is complete (bottom right).
How does 3-way switch wiring work?
If the switch is in the down position the arriving current will pass through to the common terminal
What happens when a 3-way switch is wired wrong?
Usually when a 3-way switch fails, lights can be toggled on and off at one switch, but not the other. If one of the two 3-way switches toggles the light(s) on and off, the other 3-way switch has probably failed.
How can I tell which wire is common on a 3-way switch?
And take a tester and see which one of the black wires is a live wire. So this is our live wire this
Does it matter where the black wires go on a switch?
4. Connect the black wires to the switch terminals. The switch simply interrupts the current so it doesn't matter to which terminal you connect either wire.
Does it matter where black and white wire goes on light switch?
A standard single pole light switch will simply require you to attach the black (load) wire into it, and then the black wire leaving the switch and to your lights. The switch serves to cut the power from reaching the light switch. The white or neutral wire bypasses the switch and goes straight to your lights.
Does the red wire connect to black or white?
Does The Red Wire Connect To Black Or White? Since the white wire is neutral, you should never connect a red wire to the white. However, you may connect the red wire to the black since they are both hot wires.
Why does my 3-way switch only work one way?
The cause of 3-way not working could be in the wiring, or it could be the switch itself. When working on the wiring, you should not have to do anything with the neutral (white) wires. These wires can just be left tucked in the back of the box.
What is difference between 2 way and 3-way switch?
Much like the two-way switch, a three-way switch turns a light on or off. However, there is a crucial difference. The three-way switch is used in conjunction with another three-way switch. Each one of them has the power to interrupt the electrical flow and turn the light off from a different part of the room.
How many 3-Way switches do I need?
As a rule, we must always install 3-way switches in pairs, and then as many 4-way switches as necessary. For example, if a light is to be controlled from four different locations we would need two 3-way switches and two 4-way switches.
Why would a 3 way switch trip a breaker?
Either you mis-wired your switch, or there was some other problem which probably caused your old switch to fail. If you replace a 3-way(US) switch, you need to make sure that you keep track of the common wire. It will be attached to a screw that is usually black, or copper colored.
What is the black screw for on a 3 way switch?
This screw serves one of two purposes depending on where it is positioned in the circuit run: Either it accepts the incoming black (hot) wire from the power source, or it connects to the black (hot) wire that leads onward to the light fixture.
Why does my three way switch not work?
Sometimes, a 3-way circuit doesn't work because someone tried to replace a defective switch and did not properly connect the wires. Sometimes, one of the switches has become defective.
Is the black screw the hot wire?
Basic Wire Color-Coding A black or red-hot wire usually connects to a brass-colored screw terminal or black wire lead on electrical devices. A white neutral wire usually connects to a silver-colored terminal or white wire lead.
Is common wire the same as ground?
There is a problem if there's an electrical short or maybe there's some hot wire shorting out
How can you tell if a wire is live or neutral?
If you don't get a voltage reading the wire is neutral. If you get a reading the wire is hot you can
What happens if you wire light switch wrong?
Wiring a smart light switch wrong can result in the switch not working correctly. If the wiring creates a short circuit, it can lead to damage to the switch and/or a burnt-out fuse. Errors can also lead to electric shock, fire, and a violation of local wiring codes.
Does the hot wire go on the top or bottom of a switch?
Does a hot wire go on top or bottom of a light switch? It doesn't matter. Switches simply break (off), or complete (on), circuits so that current can flow or not. Sort of like a drawbridge: If it is open (switch is off) the cars (electrons) can't cross.













Post a Comment for "How To Do A 3 Way Switch"